Баня из газобетонных блоков своими руками

Обычно для строительства бани используют дерево, но сегодня цены на натуральную древесину намного выше ценового уровня современных строительных материалов. Особенности эксплуатации строения под баню требуют тщательного выбора материала для возведения стен. Строительство бани из газобетона возможно только в случае правильного выполнения внутренних отделочных работ, предусматривающих использование гидроизоляционных материалов.
Характеристики газобетона

Почему вместо дерева специалисты рекомендуют использовать газобетонные блоки? Ответ простой:
- Из этого материала баню можно построить самостоятельно без найма бригады строителей.
- Цены на газоблоки ниже за древесину, а эксплуатационные сроки намного больше.
- Строение из газобетона получается прочным и надежным.
Среди всех характеристик строительного материала есть одна, которая останавливает многих застройщиков от использования газобетона для бани. Это высокий показатель впитывания материалом влаги. Устранить данную проблему можно, только используя при внутренней отделке хороший гидроизоляционный материал. Снаружи стены из газобетона обрабатываются специальными пропитками или грунтовками для снижения показателя водопроницаемости.
Важно! Специалисты не рекомендуют здания из газоблоков с наружной стороны штукатурить и красить.
Газобетон способен прекрасно сохранять тепло внутри здания и практически не нуждается в использовании теплоизоляционных материалов. Для строительства бани используют изоляционные стеновые блоки, прекрасно сохраняющие свои технические характеристики в условиях эксплуатации.
Блоки из газобетона не покрываются плесенью и не подвергаются нападению грызунов. Немаловажным фактором для строительства бани из газоблоков является пожароустойчивость строительного материала.
Небольшой вес блоков не требует возведения усиленной конструкции фундамента, что позволит сэкономить на времени строительства и материалах. Здание из газоблоков практически не дает усадку. Эксплуатацию строения можно начинать сразу после окончания строительства.
Проектирование бани из газобетона

При разработке проекта бани из газоблоков учитываются технические характеристики строительного материала. В сопроводительной документации должны быть прописаны рекомендации по решению вопросов гидро- и пароизоляции внутри помещений. Для строений из газоблоков рекомендовано обустройство сухой парной (сауны).
Особое внимание уделяется герметичности дверей и окон и качественной стыковке гидроизоляционного материала. Правильно разработанные проекты рекомендуют установку специальных мембран, пропускающих пар в одном направлении, и установку вентилируемых фасадов.
При индивидуальной разработке проекта необходимо учитывать:
- Расположение и размеры тамбура, комнаты отдыха, парилки, санузла.
- Подвод коммуникаций.
- Вид фундамента.
- Возможность обустройства бассейна.
- Вид печи для обогрева парилки.
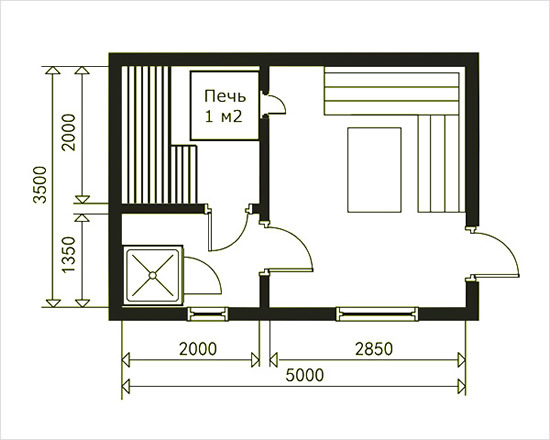
Посмотрите фото простых проектов бани из газобетона:





Этапы строительства

Возведение бани, как и любого другого здания, начинается с закладки фундамента. Согласно разработанному проекту готовится котлован под ленточный неглубокий фундамент. Для строения из газоблоков такой конструкции основания вполне достаточно. Малозаглубленный фундамент можно использовать практически при любых характеристиках грунта на строительной площадке. Во время заливки фундамента предусматриваются выходы для коммуникаций.
Прежде, чем приступить к кладке первого ряда блоков на основание, укладывается рубероид. Работы по возведению стен начинаются с самого высокого по уровню угла. Первые блоки укладывают по углам здания на цементный раствор и натягивают между ними канат.
Важно! Чтобы строение получилось надежным и прочным, особое внимание уделяют кладке первого ряда блоков. С помощью этого ряда выравниваются возможные погрешности при устройстве фундамента. Горизонтальность уложенных блоков проверяют уровнем.

Последующие ряды блоков кладут на клей слоем не более 0,7 см. Каждый четвертый ряд блоков перекладывают армированной сеткой, что сделать кладку стен более прочной. Над проемами дверей и окон делается армированный бетонный пояс. Такой же пояс делается в верхнем ряду стен.
В бетонный пояс вставляются проволочные скрутки с анкерами для крепления мауэрлата. Строительство бани из газобетона завершается возведением стропильной системы крыши. Крыша может быть односкатной, двускатной, шатровой или других конструкций. Для покрытия стропильной системы подходит любой вид кровельного материала.
Внешняя и внутренняя отделка

Следует отметить, что прокладка внутренних коммуникаций в бане из газобетона намного легче, чем в строении из дерева. Газобетонные блоки легко штробить. Пол в бане можно сделать деревянным или из кафеля.

Качество выполнения внутренней и внешней отделка бани из газобетона и определит эксплуатационные свойства всей конструкции в целом. Перед использованием чистовой отделки стены и потолок покрываются специальными гидроизоляционными составами или оббиваются фольгированной пленкой. Стены из газоблока можно покрыть жидким стеклом, что делает их намного теплее. Для чистовой отделки используется деревянная вагонка из ольхи, липы или лиственницы. Обрешетка для крепления вагонки обеспечивает вентиляционные зазоры.
Внешний вид здания из газоблоков малопривлекателен и нуждается в качественной защите от воздействия природной среды. Снаружи стены покрываются гидрофобной грунтовкой. Для чистовой отделки используется кирпичная кладка, вентилируемый фасад, декоративные плиты, деревянная или пластиковая вагонка, блок-хаус.
Стоимость бани из газобетона

На цену строительства влияет в первую очередь сложность проекта. Самый простой вариант бюджетной бани под ключ в среднем стоит 10 тысяч рублей за квадратный метр. Выполнение сложных проектов по цене возрастает в несколько раз. Вы можете заняться строительством самостоятельно. В этом случае основной расходной графой останется покупка строительных материалов.
Использование газобетона вместо натурального дерева снижает конечную стоимость бани в два раза. Для возведения прочного, надежного строения с длительным сроком эксплуатации особое внимание необходимо уделить правильному выбору газоблоков. Изделия должны быть однородного цвета, одинакового размера и с ровными краями.
За разработку проекта придется платить так или иначе, если вы не специалист в области проектирования. Многочисленные положительные отзывы от застройщиков говорят о том, что заняться строительством бани из газоблоков может практически каждый мужчина, хоть немного знакомый с азами строительства.
Отзывы пользователей
«Построили баню из газоблоков более двух лет назад, хотя многие знакомые отговаривали от использования именно такого материала для строительства. К выбору блоков отнеслись со всей серьезностью и отдали предпочтение автоклавному газобетону, о чем совершенно не жалеем. Пришлось тщательно поработать над гидроизоляцией поверхностей внутри помещений и защитой всего здания снаружи, но полученный результат радует» Виталий Русов, Воронеж.
«Во время строительства бани из газобетона никаких сложностей не возникало. Заказывали индивидуальный проект у специалистов, остальное все делали своими руками. Результат отличный. Теперь каждые выходные с друзьями собираемся и всем нравится наша баня» Александр Петрович, Петербургская обл.
«Долго сомневались, но все-таки выбрали для возведения стен бани газобетон. Результат радует уже более трех лет. Проблем с эксплуатацией нет. Здание сухое, теплое и очень уютное. Рекомендуем всем знакомым воспользоваться нашим опытом строительства» Елена Демчук, Псковская обл.
Фото дизайна бани из газоблоков











